Do you have an application where you need to transfer heavy loads that are tall compared to their width? Do you need to strap the unstable load in order to secure it for transfer? Are you in the market for a tough and durable trailer? Have you had an experience where other manufacturer's trailers just didn't hold up?
If so check out XT3394 below, and see how it filled our customer's material handling needs. Hamilton has years of experience and expertise in the design and manufacturing of custom material handling carts and trailers.


Statement of Understanding -
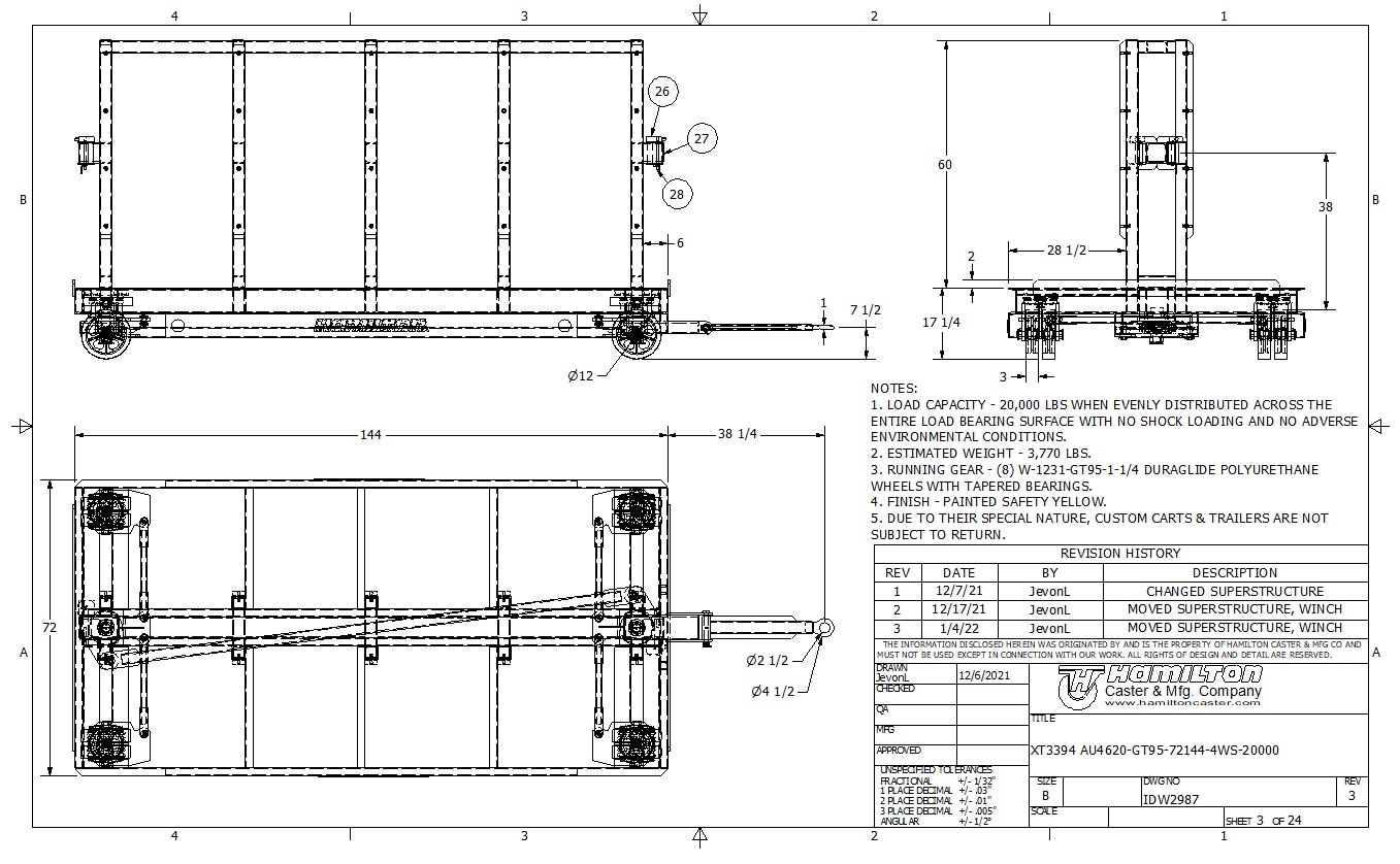
XT3394 is a trailer that will be used in the maintenance and repair of flues in the aluminum manufacturing facility.
As the flues are lifted and removed, they are placed on either side of a center superstructure that is lined with "UHMW" for load proctection. After being loaded, the flues are then strapped to the center superstructure for transportation.
The trailers are used sporadically, and may remain loaded for long periods of time. These trailers can be towed both indoors and out.
Cart Specifications -
Hamilton model number - XT3394
Frame Construction - Steel deck over structural steel frame, with center superstructure in which to secure the load to.
Superstructure - Steel structural tube uprights and bracing lined with UHMW to protect the load, and winch and winch straps to secure the load. Lip provided at leading and trailing edge of deck.
Steering Type - Four wheel autosteer
Deck Size - 72" x 144"

Deck Height - 17-1/4" to top of deck
Capacity - 20,000 lbs
Trailer Weight – 3,770 lbs
Running Gear – (8) Dual mounted W-1231-GT95-1-1/4 Polyurethane treaded wheels
Coupler – Loop type towing tongue
Finish – Safety Yellow Epoxy
Safety – ODOT Conspicuity Tape for increased visibility

Customer Profile -
The customer is one of the countries largest manufactureres of aluminum and are top ten in the world. They operate 7 facilities inside the United States, including their Global Headquarters and Reasearch and Development center.



Social Media Presence of Hamilton Carts and Trailers highlighting XT3394