Do you have an application where you need to transfer large heavy plates inside or outside of your facility? Are you concerned about down time, and trailability? Are you in the market for a tough and durable trailer? Have you had an experience where other manufacturer's trailers just didn't hold up?
Do you have to move a 40,000 lb load, but only have a 20,000 lb forklift? Semi - live skid trailers are designed to to only pick up a portion of the load, allowing the rest of the load to rest on the rear wheels.
If so check out XT3497 below, and see how it filled our customer's material handling needs. Hamilton has years of experience and expertise in the design and manufacturing of custom material handling carts and trailers.


Statement of Understanding -
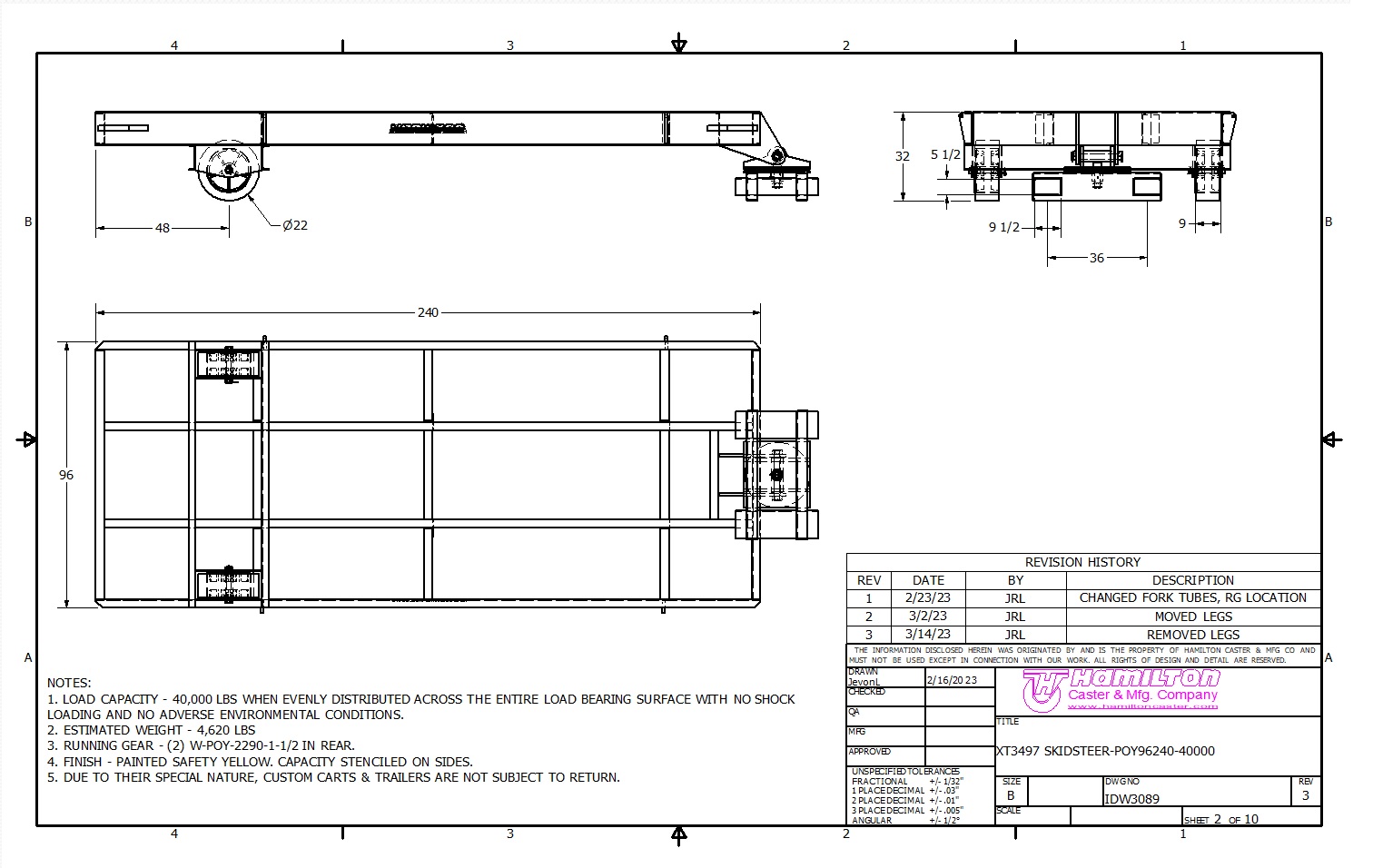
XT3497 is a skid steer trailer that is 8' wide x 20' long, rated at 40,000 lbs and rolling on large diameter press on polyurethane tired wheel. Pivoting forkpockets mounted beneath a fifthwheel plate allows the trailer to steer.
Customer is using the trailer to move large heavy steel plates and structural steel in between the plant and the outside storage area. While the customer typically uses a crane inside, there is no crane service between the building and the lot.

Cart Specifications -

Hamilton model number - XT3497
Frame Construction - Structural steel open frame
Steering Type - Semi-Live Skid
Deck Size - 96" x 240"
Deck Height - 32".
Capacity - 40,000 lbs
Trailer Weight – 4,620 lbs
Running Gear – (2) W-POY-2290-1-1/2 Polyurethane Press-on wheels.
Couplers – pivoting fork pockets
Finish – Safety Yellow enamel

Customer Profile -
The customer is a manufacturer of components for the heavy equipment market. They have multiple facilities all over North America, including Canada. .


Social Media Presence of Hamilton Carts and Trailers highlighting XT3327